Нейросети и ПДВ: мнение эксперта
Neural Networks and Smoke Ventilation: An Expert's Opinion
T. V. Marinina, HVAC design engineer, teacher and consultant on smoke exhaust system design principles
Keywords: neural networks, artificial intelligence, smoke ventilation, MPE, design, fire safety, smoke removal, pressurization, regulatory requirements, design errors
This article examines the potential and limitations of using neural networks in the design of smoke ventilation systems. Based on practical examples, it is demonstrated that AI is capable of generating formally correct, but often erroneous or incomplete, answers when working with regulatory requirements. Typical errors that arise when using AI are analyzed. It is concluded that neural networks cannot replace a qualified specialist at the current stage of their development, and recommendations for their correct use in professional activities are provided.
В статье рассмотрены возможности и ограничения использования нейросетей при проектировании систем противодымной вентиляции. На основе практических примеров показано, что ИИ способен формировать формально корректные, но зачастую ошибочные или неполные ответы при работе с нормативной базой. Проанализированы типовые ошибки, возникающие при использовании ИИ. Сделан вывод о невозможности замены квалифицированного специалиста нейросетями на текущем этапе их развития и даны рекомендации по их корректному применению в профессиональной деятельности.
Нейросети и ПДВ: мнение эксперта
Данная тема стала волновать меня относительно недавно, примерно последние полгода, когда я заметила, что, задав проектировщику вопрос, получаю ответ, сгенерированный с помощью нейросетей. Или ГИП (руководитель проекта) общается со мной на узкоспециализированную тему посредством получения ответов с помощью ИИ. Нужно ли говорить, что такой ответ очень узнаваем – у ИИ есть языковая специфика? И нужно ли упоминать, что в большинстве своем ответ содержит критические ошибки? Думаю, да. Для того чтобы проектировщики ОВ, а также их руководители понимали, в каком случае искусственный интеллект никогда не выдаст вам однозначно правильный ответ. Учитывая мою узкую специализацию – проектирование систем противодымной вентиляции, – расскажу, почему не следует доверять ИИ.

Посмотрим сначала, какие три самых быстрых инструмента ИИ можно использовать при поиске ответов на вопросы.
- Запрос в поисковой системе с функцией ИИ, например: «Площадь какой двери принять в расчете расхода дымоудаления в коридоре?» (рис. 1).
![]() |
Рисунок 1. |
Плюсами в данном случае является то, что показаны источники информации, выделена смысловая нагрузка. Я пользуюсь – это очень удобно, если есть время почитать исходные сайты.
- Чат-бот в мессенджере, где есть возможность выбрать собеседника эксперта-инженера и задать ему вопрос. Как выглядят варианты ответов на тот же самый запрос, можно увидеть на рис. 2.
Минусом в данном случае является то, что ответ, вероятнее всего, будет «галлюцинацией» ИИ. Красивый и уверенный текст обусловлен всего лишь алгоритмом написания ответа и выбранным стилем.
![]() |
![]() |
Рисунок 2. |
- Нейросети, способные проанализировать загруженную нормативную базу.
![]() |
Рисунок 3. |
Для примера задан очень распространенный и простой вопрос (рис. 3). ИИ обрабатывает его на основе частых запросов, поиском по сайтам, либо по загруженным документам. Можно добавить точности, попросив ИИ «не врать», найти точный текст (рис 4).
![]() |
Рисунок 4. |
В лучшем случае поиск закончится цитатой «в расчете расхода дымоудаления в коридоре следует принимать площадь двери при выходе из коридора по путям эвакуации».
Но какая это дверь? Самые частые вопросы:
- дверь горящего помещения – это тоже эвакуационная дверь в коридоре, нужно ли принять ее, если она самая большая?
- если несколько дверей, которые выходят и на улицу, и в лестничную клетку, какую дверь принять?
- а дверь в ПБЗ является путем эвакуации? А в лифтовый холл?
- а если у двери несколько створок?
Попробуем выяснить это, сформулировав новый запрос: «Дверь должна вести в помещение, на лестницу, на улицу, в лифтовой холл или пожаробезопасную зону?». Ответ чат-бота (рис. 5).
![]() |
Рисунок 5. |
Ответ Алисы AI на тот же запрос (рис. 6).
![]() |
Рисунок 6. |
Нормативные документы не содержат пояснений, тем более они не содержат объяснений – почему именно так, а не иначе? Почему это должна быть дверь на лестницу или в ПБЗ и почему должна быть принята именно бóльшая створка? Ответы на подобные вопросы приходится собирать по крупицам на форумах и семинарах, в статьях, разъяснениях и зарубежной литературе. И совокупность этих знаний на данный момент ИИ заменить не может.
Анализируя эти источники самостоятельно, истину найти все же можно. Она содержится в BS EN 12101-13-2022:
«5.6.5. Критерии скорости воздушного потока
Конструкция должна обеспечивать минимальные скорости воздуха через открытые двери между защищаемыми и незащищенными помещениями, соответствующие таблице 1.
Если из защищаемого помещения в незащищенное помещение ведет более одной двери, должно быть продемонстрировано, что СЭП будет работать с полностью открытой одной дверью, а в случае дверей разных размеров это должна быть дверь с наибольшей площадью.
Если дверь, включая последнюю выходную, имеет две створки, должно быть продемонстрировано, что система PDS будет работать только с полностью открытой створкой.
Примечание 1. Во время эвакуации множество людей будут препятствовать открытию двери, так что для данной конструкции достаточно свободного поперечного сечения одной полностью открытой двери или створки без каких-либо препятствий.
Примечание 2. Если на одном этаже из защищенного в незащищенное пространство открывается больше дверей и/или можно использовать более одной выходной двери, при проектировании необходимо предусмотреть возможность увеличения объема.
Двери с двумя створками, которые необходимо закрывать в определенном порядке, должны быть спроектированы таким образом.
Критерии скорости воздушного потока должны соблюдаться только на этаже пожара. Соответствующий путь выпуска наружу должен быть открыт.
В качестве варианта, если проектировщик может обосновать компетентным органам власти, что последняя выходная дверь может быть спроектирована так, чтобы она была закрыта, например если пожарной команде не придется поддерживать ее в открытом положении во время своего вмешательства, это приемлемо. Дверь всегда должна быть открыта для выхода людей и входа пожарных.
Однако ответственному лицу должна быть предоставлена четкая информация о том, что дверь не была открыта во время происшествия».
И вот Примечание 1 дает нам ответ на вопрос, какую же дверь и в какой площади принять:
«Конструкция должна обеспечивать минимальные скорости воздуха через открытые двери между защищаемыми* и незащищенными помещениями. Во время эвакуации множество людей будут препятствовать открытию двери, так что для данной конструкции достаточно свободного поперечного сечения одной полностью открытой двери или створки без каких-либо препятствий.
* Защищенное пространство – пространство, конструкция которого предотвращает проникновение дыма»
Если ваш вопрос противоречив и требует обоснования, ИИ, скорее всего, не сможет вам помочь. Такой случай наглядно демонстрирует скриншот на рис. 7.
![]() |
Рисунок 7. |
Условие, которое не позволит нам пока внедрить ИИ в проектирование противодымной вентиляции, – это не только отсутствие в нейросетях базы по истории происхождения требований к ПДВ (например, почему дымовую зону следует делить по протяженности не более 60 м), но и ошибки в исходных данных, которые мы получаем для проектирования систем.
Например, в проекте требуется рассчитать подпор в лифтовую шахту, расположенную в объеме незадымляемой лестничной клетки (рис. 8).
![]() |
Рисунок 8. |
Запрос для ИИ: «Расчет подпора воздуха в лифтовую шахту, расположенную в незадымляемой лестничной клетке» и ответ Алисы AI (рис. 9)
![]() |
Рисунок 9. |
Кроме того, в поддержку такого решения часто в СТУ можно встретить требование к резервированию систем подпора в лестничные клетки. Проектировщик, принимая на веру исходные данные и подтверждение подпора в первом же поисковом запросе для ИИ, выполняет такие системы. Это довольно частый пример, когда ошибки в конфигурации лестнично-лифтового узла не позволяют корректно выполнить противодымную защиту. Поэтому проектировщику следует иметь общее представление об эвакуации по ЛК в зданиях. Но ИИ не имеет этой связи в алгоритме поиска ответа. Для нашего случая ошибка состоит в следующем: СП 1.13130.2020 п. 4.4.10: «В объеме лестничных клеток, кроме незадымляемых, допускается размещать не более двух пассажирских лифтов, опускающихся не ниже первого этажа. При этом ограждающие конструкции лифтовых шахт следует предусматривать из негорючих материалов, предел их огнестойкости не нормируется».
Или перефразируем: в объеме Н2 не допускается размещать лифтовые шахты!
Следует сначала изменить планировку, а затем проектировать ПДВ отдельно для Н2 и отдельно для ЛШ. Данного предупреждения в рассуждениях ИИ мы не обнаруживаем.
Или, например, следует принять решение о дымоудалении в коридорах одноэтажных зданий.
Запрос для ИИ: «Нужно ли делать дымоудаление из коридоров в одноэтажном здании?» Ответ приведен на рис. 10.
![]() |
Рисунок 10. |
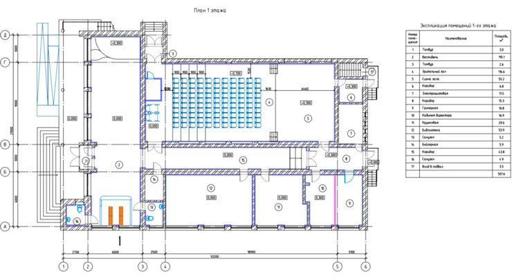
Следуя ответу ИИ, проектировщик не стал бы делать систему противодымной вентиляции. Однако при анализе планировки (рис. 11) мы можем выяснить, что библиотека, относящаяся к категорируемым помещениям В1–В4 с постоянными рабочими местами, может повлиять на то, что в данном коридоре одноэтажного здания появятся системы ПДВ. СП 7.13130.2013, п. 7.2 (е): «Из каждого производственного или складского помещения с постоянными рабочими местами… Допускается проектировать удаление продуктов горения через примыкающий коридор из помещений площадью до 200 м2: производственных категорий B1, В2, В3, а также предназначенных для хранения или использования горючих веществ и материалов».
![]() |
Рисунок 11. |
Преимущества внедрения нейросетей в проектирование ПДВ, которое активно продвигается в сообществе проектировщиков, следует оценивать критически. Такие плюсы, как:
- снижение трудозатрат и времени;
- повышение точности расчетов;
- возможность быстрой адаптации к изменениям требований, –
очень условны и применимы к простейшим задачам. Исходные данные, требующие предварительного полноценного анализа со стороны путей эвакуации, никаким образом не находят отражения в нейросетях. Заменить квалифицированного специалиста на данной стадии своего развития нейросети не могут.
Возможно, это станет реальным, когда для ИИ будет создан полноценный алгоритм работы с анализом здания на необходимость систем ПДВ, а это:
- проверка архитектурных решений в части путей эвакуации, горизонтальных и вертикальных связей;
- проверка необходимости обеспечения противодымной вентиляции на путях эвакуации;
- проверка необходимости обеспечения противодымной вентиляции в помещениях;
- проверка возможности переноса систем противодымной вентиляции из помещений в коридоры;
- проверка возможности исключения применения систем противодымной вентиляции;
- проверка необходимости применения приточных систем ПДВ;
- проверка возможности совмещения приточных и компенсирующих систем ПДВ;
- проверка выполнения требований ст. 85 123 ФЗ.
Вот еще несколько примеров, в которых ИИ не справляется с поставленными вопросами.
- Запрос для ИИ: «Нужно ли делать дымоудаление в общежитии квартирного типа?» (рис. 12).
![]() |
Рисунок 12. |
Ответ:
«### Вывод: Если общежитие квартирного типа **ниже 28 м** и не имеет протяженных общих коридоров, дымоудаление **не обязательно**. Но проект должен быть согласован с МЧС и соответствовать СП 7.13130.2020.
### **1. Нужно ли дымоудаление в общежитии квартирного типа?**
**Зависит от этажности и планировки:**
- **до 9 этажей** – дымоудаление **не требуется** (если нет коридорной системы);
- **10 этажей и выше** – обязательно **устройство дымоудаления** из коридоров (СП 7.13130.2020, п. 7.2);
- **Квартирный тип** (отдельные выходы на лестницу) – если нет общих коридоров, дымоудаление **может не требоваться**».
Правильный ответ. Что такое протяженный общий коридор? ИИ, скорее всего, имеет в виду общие коридоры с незадымляемыми лестничными клетками и коридоры длиннее 15 м.
Начинать разбираться следует с исходников. К какому типу здания относится общежитие квартирного типа? Согласно ст. 32 ФЗ-123, это Ф1.3 – многоквартирные жилые дома, в т. ч. общежития квартирного типа; а значит, решение по системам ПДВ следует принимать по аналогии с жилыми домами.
Согласно СП 7.13130.2013, п. 7.2: «Удаление продуктов горения при пожаре системами вытяжной противодымной вентиляции следует предусматривать: в) из коридоров без естественного проветривания при пожаре длиной более 15 м в зданиях с числом этажей два и более: производственных и складских категорий А, Б, В; общественных и административно-бытовых; многофункциональных».
То есть данный пункт не относится к жилым зданиям. Коридоры жилого здания оборудуются системами ПДВ в зависимости от расстояния от наиболее удаленной двери квартиры до выхода на путь эвакуации (по оси пути эвакуации), согласно СП 1.13130.2020, п. 6.1.8: «В секции жилого здания при выходе из квартир в коридор (холл, в т. ч. межквартирный), не имеющий оконного проема площадью не менее 1,2 м2 в торце, расстояние от двери наиболее удаленной квартиры до выхода непосредственно наружу, вестибюль (выделенный противопожарными перегородками 1-го типа), в лестничную клетку или в тамбур, ведущий в воздушную зону лестничной клетки типа Н1 или на лестничную клетку типа Н3, не должно превышать 12 м. При наличии оконного проема или системы противодымной вентиляции в коридоре (холле) это расстояние допускается принимать по таблице 3 как для тупикового коридора».
В данном общежитии квартирного типа расстояние от двери наиболее удаленной квартиры до пути эвакуации в ЛК типа Л1 составляет 7 и 11 м, что менее 12 м, следовательно, устройство систем ПДВ не требуется.
- Запрос для ИИ: «Нужен ли подпор в пожаробезопасную зону, выходящую в лестничную клетку типа Н2?» (рис. 13).
![]() |
Рисунок 13. |
Ответ:
«### Вывод:
Подпор воздуха в пожаробезопасную зону, выходящую в лестничную клетку типа Н2, организуется для предотвращения задымления и обеспечения безопасной эвакуации».
Правильный ответ. Обратимся к исходникам. СП 1.13130.2020, п. 9.2.1: «Пожаробезопасные зоны могут предусматриваться следующих типов:
- 1 тип: помещение, выделенное конструкциями с нормируемым пределом огнестойкости, с подпором воздуха при пожаре непосредственно в помещение, либо в тамбур-шлюз на входе в указанное помещение, либо отделенное воздушной зоной, размещенной перед входом в указанное помещение;
- 2 тип: зона, расположенная на эксплуатируемой кровле, открытом балконе, лоджии, веранде или галерее;
- 3 тип: пожарный отсек или пожарная секция, имеющие самостоятельные эвакуационные пути, выделенные противопожарными преградами с нормируемым пределом огнестойкости, обеспечивающими защиту людей от опасных факторов пожара во время пожара;
- 4 тип: лестничная клетка».
Помещение 302 (ПБЗ) можно отнести к 1 типу ПБЗ, когда перед ней находится тамбур-шлюз (функцию которого выполняет лестница типа Н2). ПБЗ в примере оборудована двумя системами подпора: на «открытую дверь» (ОД) и на «закрытую дверь» (ЗД) с подогревом. Согласно п. 9.2 СП 1.13130.2020, при первом типе ПБЗ и наличии перед ней тамбур-шлюза (в нашем случае роль тамбур-шлюза выполняет Н2) подпор в ПБЗ не требуется (ни на ОД, ни на ЗД). Кроме этого, необходимо учитывать проведение пусконаладочных работ. Замеры расходов воздуха на «открытую дверь», а также избыточного давления должны производиться в помещении, смежном с задымленным. В данном случае таким помещением является незадымляемая ЛК, а не ПБЗ.
- Запрос для ИИ: «Следует ли выполнять дымоудаление из тамбура перед пожаробезопасной зоной?» (рис. 14).
![]() |
Рисунок 14. |
Ответ: «Да, дымоудаление из тамбура перед пожаробезопасной зоной **рекомендуется** и часто **обязательно** по нормам пожарной безопасности.
### **Обоснование:**
1. **Назначение тамбура** – предотвращение распространения дыма и огня в защищаемую зону (например, эвакуационный путь, лестничную клетку).
2. **Без дымоудаления** дым может накапливаться, снижая видимость и затрудняя эвакуацию.
3. **Нормативные требования** (СП 7.13130, СП 60.13330, НПБ 239-97) часто предписывают принудительное удаление дыма из тамбуров шлюзов».
Правильный ответ. Тамбура перед пожаробезопасной зоной быть не может. Это либо тамбур-шлюз, либо коридор. В данном примере ошибка наименования помещения не позволяет нам получить правильный ответ при запросе. Вариантов решения тут два:
- переименовать тамбур в тамбур-шлюз и выполнить туда приточную противодымную вентиляцию. При этом защите приточно-вытяжной ПДВ будут подлежать все выходящие в него помещения;
- переименовать тамбур в коридор, тогда выполнить приточную ПДВ в ПБЗ, а приточно-вытяжную ПДВ в самом коридоре. Этот вариант хуже, хотя требует меньшего количества систем. При выполнении ПДВ в таком маленьком коридоре расход удаляемых продуктов горения будет очень высоким, соблюсти перепад давления на дверях менее 150 Па будет невозможно.
Заключение
На данный момент моя профессиональная рекомендация будет такой: создавайте собственную базу нормативных требований, куда в редактируемом формате следует добавлять постепенно письма, разъяснения, нормативные документы (не только по пожарной безопасности, но и профильные СП по разным типам зданий), а дальнейшую работу и поиск информации выполняйте посредством точных запросов с указанием цитаты. Конечно, даже такой результат следует проверить лично. И помните: если планировка изначально содержит ошибку, ответ на запрос будет неверным.
Статья опубликована в журнале “АВОК” за №3'2026
pdf версия Статьи по теме
- Нейросетевые технологии в водоочистке и системах водоснабжения: современные подходы, практическое применение и перспективы
Сантехника №2'2026 - Почему нейросети «придумывают» нормы? 5 техник, как перестать работать с «несуществующими СП»
АВОК №2'2026 - Теплотехнические характеристики ограждающих конструкций зданий. Ч. 1. Европейский подход и метод расчета
Энергосбережение №7'2017 - Теплотехнические характеристики ограждающих конструкций зданий. Ч. 2. Российские принципы нормирования
Энергосбережение №8'2017 - Проектирование систем противодымной вентиляции: рекомендации эксперта
АВОК №3'2025 - Противодымная защита в вопросах и ответах
АВОК №7'2014 - Энергоэффективные системы вентиляции для обеспечения качественного микроклимата помещений
АВОК №5'2000 - Проект и качество – дефицит знаний и мотиваций
АВОК №2'2006 - Оценка обеспеченности расчетных параметров при проектировании систем отопления жилых зданий в Москве
АВОК №7'2011 - Особенности конструирования и проектирование санитарно-технического оборудования с учетом требований антропометрии и биомеханики
Сантехника №1'2021
Подписка на журналы




























